EN
高压成套开关柜系列
产品中心

高压成套开关柜系列

XGN☐-12 智能固体绝缘柜

XGN-12是本公司的新一代固体绝缘环网柜,适合智能电网应用。该系统具有高水平的运行安全性,广泛应用于12kV二次配电系统。XGN-12环网柜基于本公司成熟的真空灭弧室进行设计,无需维护,10.000次操作寿命获得认证。柜内所有高压带电部件均采用单相绝缘。所用材料经过特别打造,提供极佳的绝缘性能及优异的散热特性。此外,经过特殊设计的绝缘结构,有效的优化了周围电场分布,因此最大限度地降低了内部燃弧的任何风险。

厂家直销

厂家直销

品质保障

品质保障

支持定制

支持定制

售后服务

售后服务

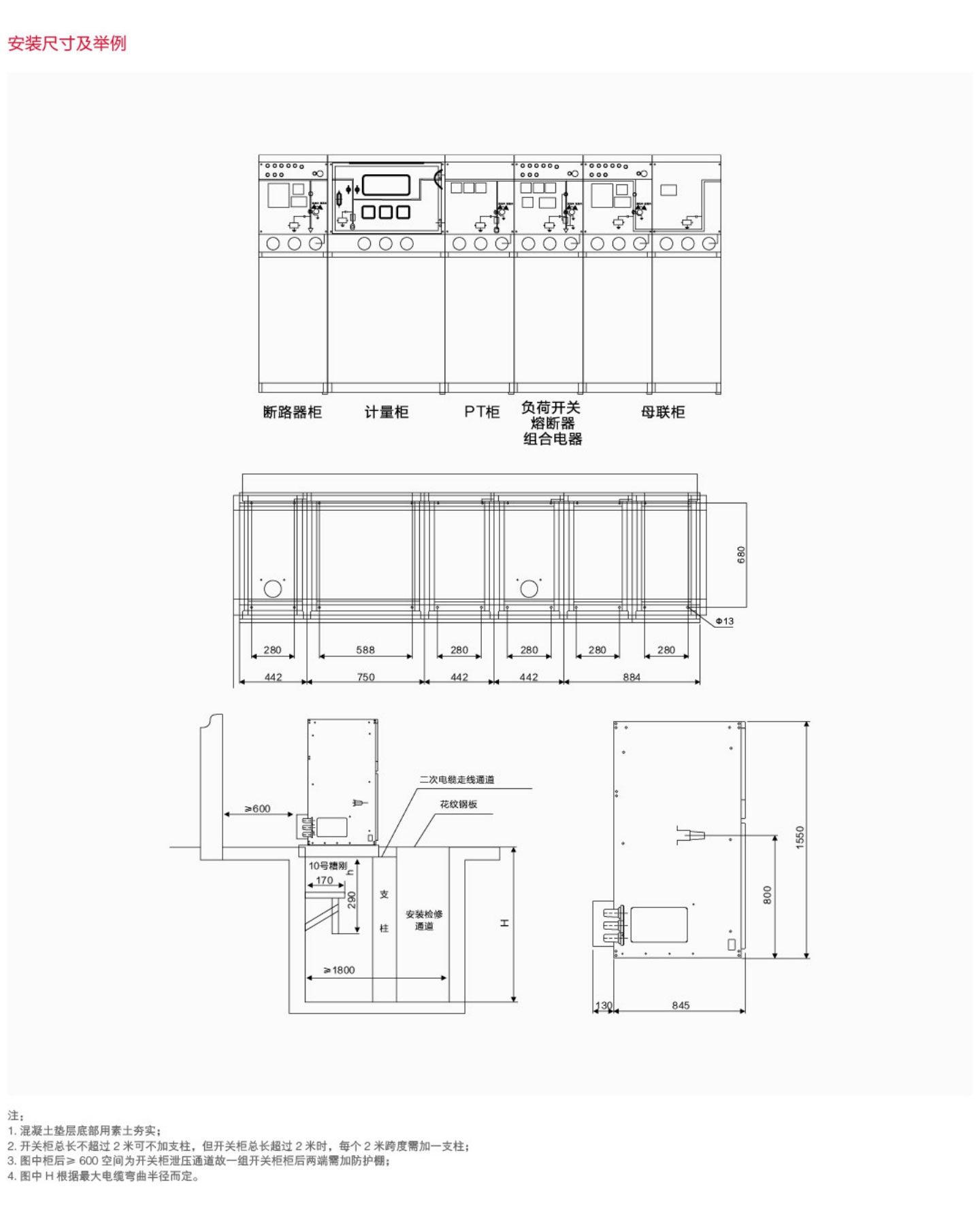
产品详情:

0102_05.jpg0103_05.jpg0104_05.jpg0105_05.jpg0106_05.jpg

推荐产品

返回一上级

Copyright © 申恒电力设备有限公司 版权所有 | 浙ICP备2022020872号 | 网站建设: 颂诚网络 温州

申恒电力设备有限公司

0577-62633718

(联系电话 7×24)